lIBECCUI
back
       

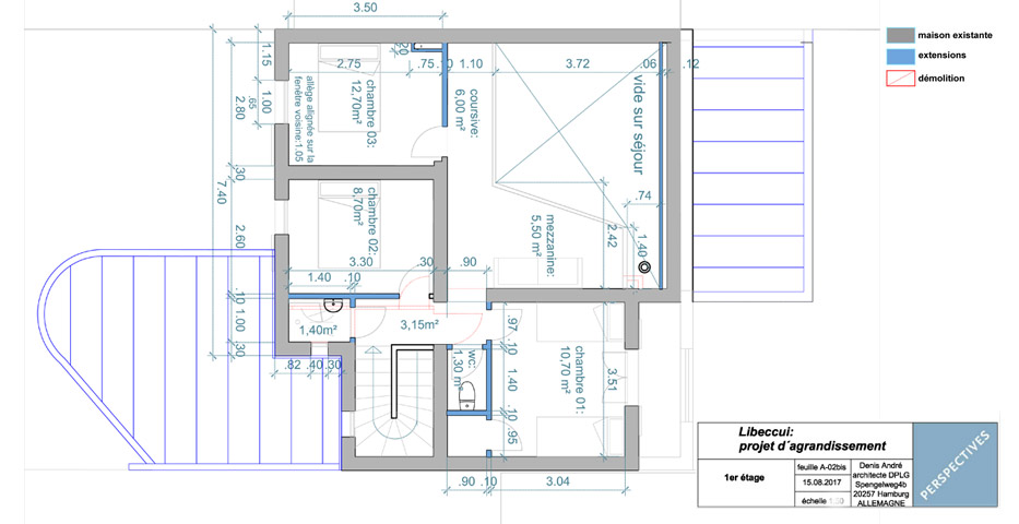
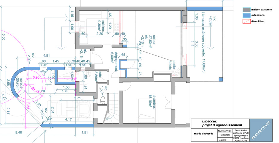
Extension.et.réaménagemant.d´une.maison.de.vacances:

                            villa.Libeccui

permis.de.construire.janvier2017

                            budget,200M.Euros




Ausbau-Umbau.eines.Ferienhauses:

                             Villa.Libeccui

Baugenehmigung.Januar2017

                            Budget,350M.Euros

San.Cipriano.Lecci
          



Denis André architecte DPLG
Hambourg

    <<< back
  scroll >>> >>>  
home