Berlin-Rykestr.
back
       

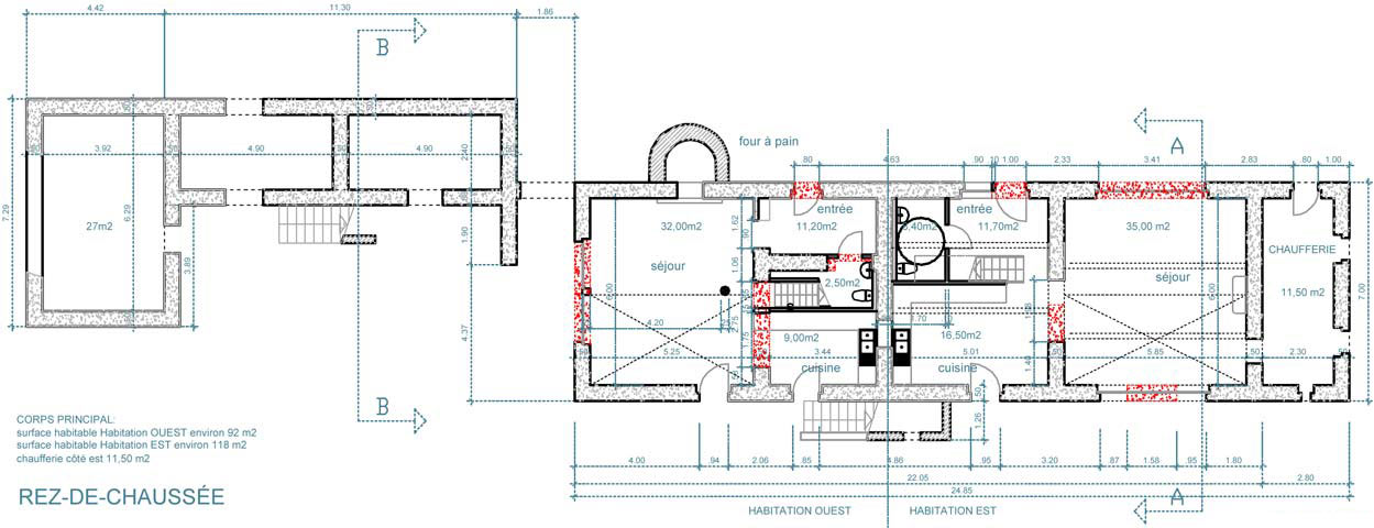
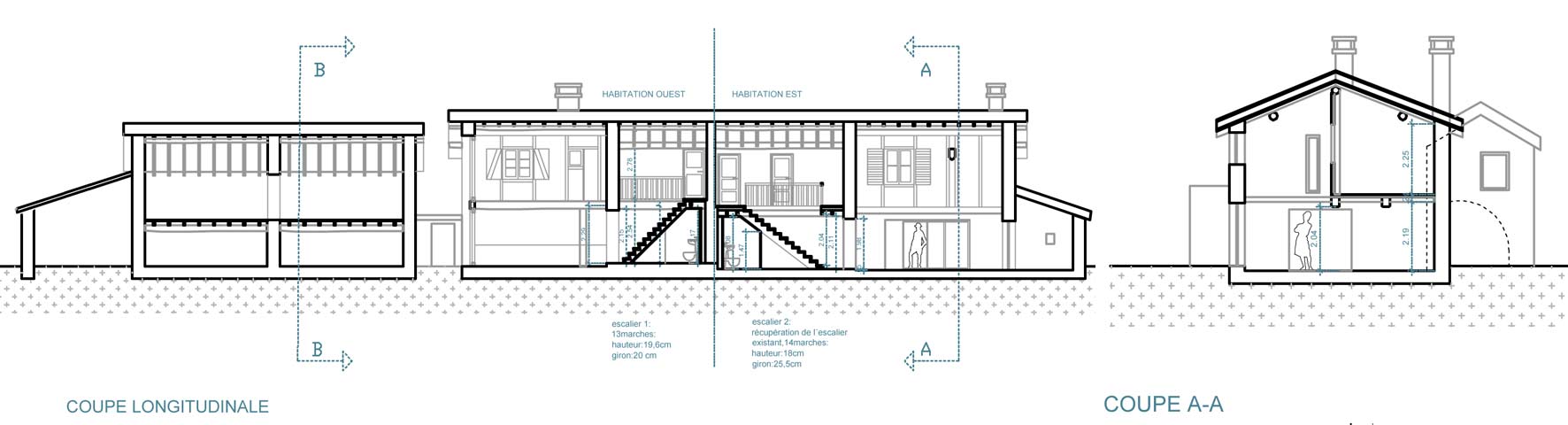
création de deux
logements dans un ancien corps de ferme,
étude de faisabilité:

budget,350M.Euros

zwei Wohneinheiten in einem alten Bauernhof einrichten,
Machbachkeitsstudie:

Budget,350M.Euros

Pouilly-les-Nonains
          



Denis André architecte DPLG
Berlin

    <<< back
  scroll >>> >>>  
home